top of page
&PIZZA
2020-2023
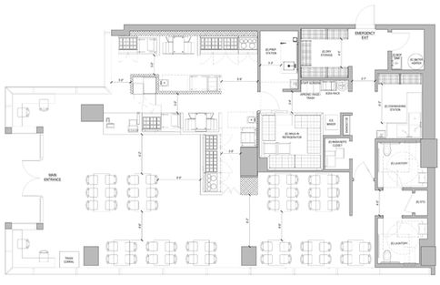
As an freelance consultant for &Pizza, I provided test fits, renderings and development of millwork and construction standards.


bottom of page
&PIZZA
2020-2023
As an freelance consultant for &Pizza, I provided test fits, renderings and development of millwork and construction standards.

