top of page
KIEHL'S SINCE 1851
2015-2019
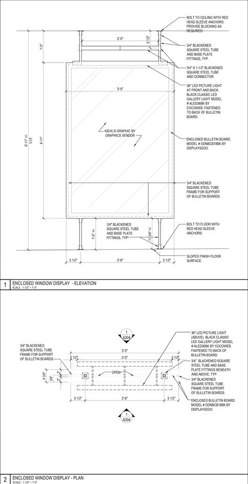
As part of the Kiehl's Construction Team, my responsibilities included maintenance of general store construction standards, millwork development, and construction drawings for atypical locations such as the Farmers Market in Los Angeles, CA.


bottom of page









